• NISHIMAGOME - 西馬込・個人邸 リノベーション

  • FREE STYLE - オーダーリノベーション

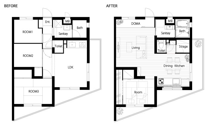
  • 78 TAMAZUTSUMI
  • 79 SHIBUYA
  • 77 NAKADAI
  • 218 SHIMBASHI
  • 59 OHKURAYAMA
  • 44 FUDOMAE
  • 76 MINAMIURAWA
  • 91 TSURUMI
  • 73 OHJI
  • 80 TAMAGAWA
  • 71 KIKUNA
  • 68 SENDAGI
  • 64 EKODA
  • 66 OHKURAYAMA
  • 53 AOBADAI
  • 104 MITAKA
  • 83 NAKAMEGURO
  • 46 DAIKANYAMA
  • 63 SAKURAGAOKA
  • 41 KICHIJOJI
  • 58 KOKUBUNJI
  • 111 DAITA
  • 72 KAMEIDO
  • 86 YOKOHAMA
  • 38 HARAJUKU
  • 73 KANAMECHO
  • 69 HACHIMANYAMA
  • 85 KIYOSUMISHIRAKAWA
  • 75 KURAMAE
  • 43 BAKUROCHO
  • 50 NISHIMAGOME
  • 164 OKACHIMACHI
  • 93 HIGASHIKOIWA
  • 79 AKASAKA
  • 95 MAKUHARI
  • 141 KOTOBUKI
  • 68 HONGO
  • 87 NAKAMEGURO
  • 62 HATSUDAI
  • 68 SENJU
  • 76 SAGINUMA
  • 61 CHITOSEKARASUYAMA
  • 103 ZUSHI
  • 58 CHOFU
  • 58 IRIYA
  • 58 TSURUMAKI
  • 58 OHTSUKA
  • 58 KOMAZAWA
  • 53 KAMINOGE
  • 67 CHIBA
  • 85 ASAKUSA
  • 64 MUSASHIKOYAMA
  • 67 HIRAI
  • 38 ASAGAYA
  • 70 HIMONYA
  • 51 NAKANO
  • 49 ASAKUSA
  • 68 SENDAGAYA
  • 88 MEJIRO
  • 78 MEJIRODAI
  • 54 TSUKIJI
  • 45 OHIMACHI
  • 61 KOTESASHI
  • 69 KOSHIGAYA
  • 45 EBISU
  • 43 SHINSEN
  • 63 YONO
  • 28 HIRAI
  • 81 NIHONBASHI
  • 20 OHGIBASHI
  • 30 KAGURAZAKA01
  • 27 KAGURAZAKA02
  • 82 GUJIGAOKA
  • 86 MINAMIAOYAMA
  • 00 SARUE
  • 00 ASAKUSA

FREE STYLE CONTACT